logo

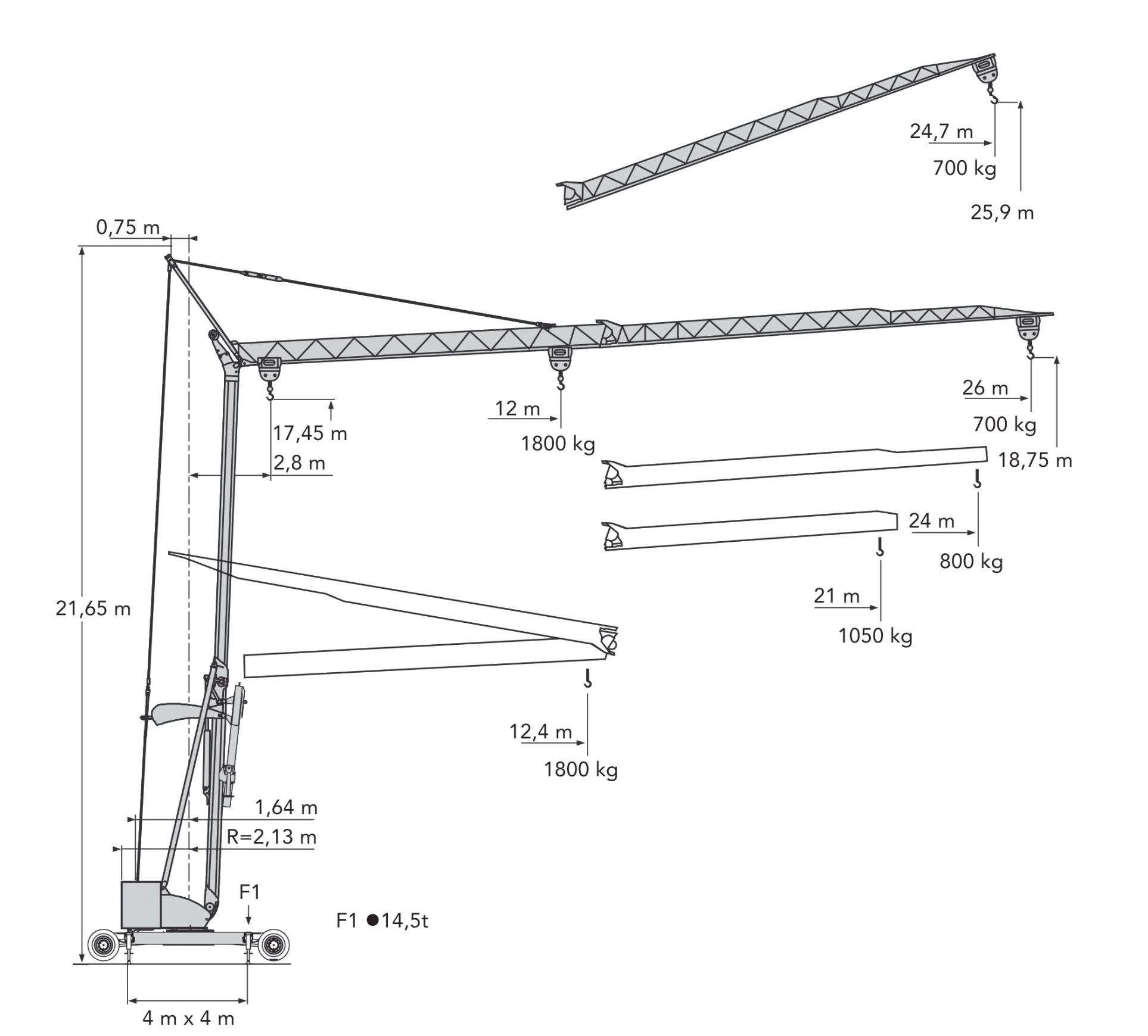
M21

Self Propelled Crane

  • Max. jib radius26 metres
  • Max. load1.8 tonnes
  • Radius with maximum load12.4 metres
  • Load at jib nose0.7 tonnes
Specifications and data not binding. Subject to modification without notice.